Vânzare apartament 2 camere, parter, situat în Târgu Jiu, Aleea Sfântul Nicolae

Descriere proprietate

Apartament 2 camere de vânzare – Aleea Sfântul Nicolae, Târgu Jiu
 
Vă propunem spre vânzare un apartament cu 2 camere, situat în Târgu Jiu, Aleea Sfântul Nicolae, la parterul unui imobil cu 4 etaje, amplasat într-o zonă liniștită, foarte aproape de centrul orașului.
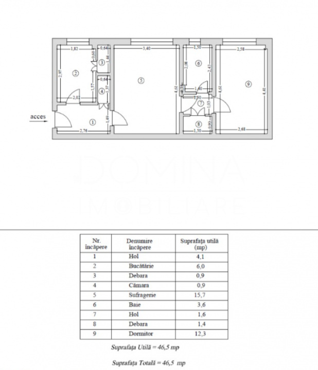
Apartamentul are o suprafață utilă totală de 47 mp și o compartimentare semidecomandată, fiind compus din: sufragerie, dormitor, bucătărie, baie, 2 holuri și 3 spații de depozitare, oferind multiple posibilități de organizare și amenajare.
Locuința nu dispune de îmbunătățiri, însă beneficiază de centrală termică proprie schimbată, ceea ce reprezintă un avantaj important pentru confortul termic și costurile de întreținere. Apartamentul este ideal pentru persoanele care doresc să îl amenajeze după propriul gust sau pentru investiție.
 
Zona oferă acces rapid către numeroase puncte de interes: instituții publice, unități de învățământ, bănci, farmacii, magazine și alte zone comerciale.
Pentru mai multe informații sau pentru stabilirea unei vizionări, nu ezitați să ne contactați.

ID/COD OFERTĂ: 1430

Vreți să afle și prietenii dumneavoastră de această ofertă?

Pentru a putea efectua calcule vă rugăm să vă autentificați. Intră în cont sau Înregistrează-te

CUMPĂRĂTORUL imobilului va plăti următoarele taxe
Onorariu notarial pentru autentificare contract vânzare (TVA inclus)
Onorariu notarial pentru autentificare contract credit (TVA inclus)
Taxa de intabulare către ANCPI

In calculul de mai sus cumpărătorul(dvs) este persoană fizică și dorește să dobândească proprietatea fără credit ipotecar sau Prima casă. Daca situația diferă, accesați calculatorul pentru taxe notariale.

Taxele notariale sunt cele minim impuse de Camera Notarilor Publici și au caracter informativ.

Calculul a fost efectuat la cursul BNR de astăzi.

Informațiile prezentate de agentul imobiliar sunt considerate corecte, dar nu sunt garantate. Responsibilitatea pentru corectitudinea informațiilor prezentate aparține în întregime proprietarilor, reprezentanților acestora sau semnatarilor contractelor de intermediere. Agenția imobiliară sau agentul imobiliar nu-și asumă niciun fel de răspundere în acest sens.

0737800000